Skip to main content
Eingaben löschen
Eingaben löschen
Suche
Kontakt
Deutsch (AT)
België
Deutschland
France
International (english)
India
Italia
Nederland
Polska
România
Schweiz
Türkiye
Produkte
Produkte
Rückstauschutz
Rückstauschutz - Alles was Fachleute wissen müssen
Rückstauverschlüsse
Pumpfix M
Staufix FKA
Staufix SWA
Controlfix
Staufix
Staufix DN 50 und DN 70
Staufix Siphon DN 50
Rohrklappen
Rückstauschächte
Rückstau-Standardschacht
Rückstau-Modulschacht
Hybrid-Hebeanlagen
Alles was Fachleute wissen müssen
Ecolift M
Ecolift L
Ecolift XL
Pumpentechnik
Alles was Fachleute wissen müssen
Kleinhebeanlagen
Minilift S
Minilift M
Minilift L
Minilift M WC
Minilift L WC
Minilift L WC Duo
Hebeanlagen
Aqualift M
Aqualift L
Aqualift L Pro
Aqualift 100 und 200
Aqualift XL
CleverLoop
CleverVent
Pumpstationen
Aquapump Medium
Aquapump XL
Aquapump XXL
Retrofit
Tauchpumpen
Aquadive KTP 300
Aquadive GTF 500
Aquadive GTF 1000
Ablauftechnik
Ablauftechnik - Alles was Fachleute wissen müssen
Badabläufe und Duschrinnen
Der Ultraflache
Linearis Infinity
Linearis Comfort
Linearis Compact
Wandablauf Scada
Bodenabläufe
Bodenablauf Ecoguss
Bodenablauf Practicus
Bodenablauf Ferrofix
Kellerabläufe
Pumpfix S Underfloor
Universale Plus
Kellerablauf Der Universale
Kellerablauf Drehfix
Leichtflüssigkeitssperre
Kellerabläufe ohne Rückstausicherung
Abläufe im Außenbereich
Parkdeckabläufe Ecoguss
Hofabläufe
Regenabläufe
Flachdachabläufe
Abscheidetechnik
Fettabscheider
Fettabscheider - Alles was Fachleute wissen müssen
EasyClean free
EasyClean free Modular
EasyClean ground
EasyClean ground Oval
Fettabscheider EasyClean ground Multi
BIFENA
Leichtflüssigkeitsabscheider
Koaleszenzabscheider EasyOil ground
Öl-, Benzinabscheider EasyOil ground
Stärkeabscheider
Sinkstoffabscheider
Speisereste-Sammelsystem
Eingabestation EasyCollect
Sammeltank EasyStore
Technikschächte aus Kunststoff
Individuelle Lösungen
Referenzen
OEM-Lösungen
Service
Kataloge & Prospekte
Einbau- und Bedienungsanleitungen
Dienstleistungen
Einbauberatung
Inbetriebnahme & Einweisung
Generalinspektion
Wartung
Wartungsvertrag
Ersatzteile
Servicepartner finden
BIM-Daten und CAD-Zeichnungen
Planungstool SmartSelect
Ausschreibungstexte
Artikelstammdaten und Preise
Produktregistrierung
Minilift
Generelle Produktregistrierung
Über uns
Unternehmensprofil
mastering water
Integriertes Managementsystem
Nachhaltigkeit
Weiterbildung
Verarbeiter
Planer & Architekten
Handel & Institutionen
Betreiber
Bildungspartner
Individuelle Schulungen
Kundenforen
Kundenforum Lenting
Kundenforum Stuttgart
Kundenforum Mainz
Kundenforum Dortmund
Kundenforum Hamburg
Service
Produkte
Rückstauschutz
Rückstauschutz - Alles was Fachleute wissen müssen
Rückstauverschlüsse
Pumpfix M
Staufix FKA
Staufix SWA
Controlfix
Staufix
Staufix DN 50 und DN 70
Staufix Siphon DN 50
Rohrklappen
Rückstauschächte
Rückstau-Standardschacht
Rückstau-Modulschacht
Hybrid-Hebeanlagen
Alles was Fachleute wissen müssen
Ecolift M
Ecolift L
Ecolift XL
Pumpentechnik
Alles was Fachleute wissen müssen
Kleinhebeanlagen
Minilift S
Minilift M
Minilift L
Minilift M WC
Minilift L WC
Minilift L WC Duo
Hebeanlagen
Aqualift M
Aqualift L
Aqualift L Pro
Aqualift 100 und 200
Aqualift XL
CleverLoop
CleverVent
Pumpstationen
Aquapump Medium
Aquapump XL
Aquapump XXL
Retrofit
Tauchpumpen
Aquadive KTP 300
Aquadive GTF 500
Aquadive GTF 1000
Ablauftechnik
Ablauftechnik - Alles was Fachleute wissen müssen
Badabläufe und Duschrinnen
Der Ultraflache
Linearis Infinity
Linearis Comfort
Linearis Compact
Wandablauf Scada
Bodenabläufe
Bodenablauf Ecoguss
Bodenablauf Practicus
Bodenablauf Ferrofix
Kellerabläufe
Pumpfix S Underfloor
Universale Plus
Kellerablauf Der Universale
Kellerablauf Drehfix
Leichtflüssigkeitssperre
Kellerabläufe ohne Rückstausicherung
Abläufe im Außenbereich
Parkdeckabläufe Ecoguss
Hofabläufe
Regenabläufe
Flachdachabläufe
Abscheidetechnik
Fettabscheider
Fettabscheider - Alles was Fachleute wissen müssen
EasyClean free
EasyClean free Modular
EasyClean ground
EasyClean ground Oval
Fettabscheider EasyClean ground Multi
BIFENA
Leichtflüssigkeitsabscheider
Koaleszenzabscheider EasyOil ground
Öl-, Benzinabscheider EasyOil ground
Stärkeabscheider
Sinkstoffabscheider
Speisereste-Sammelsystem
Eingabestation EasyCollect
Sammeltank EasyStore
Technikschächte aus Kunststoff
Individuelle Lösungen
Referenzen
OEM-Lösungen
Service
Kataloge & Prospekte
Einbau- und Bedienungsanleitungen
Dienstleistungen
Einbauberatung
Inbetriebnahme & Einweisung
Generalinspektion
Wartung
Wartungsvertrag
Ersatzteile
Servicepartner finden
BIM-Daten und CAD-Zeichnungen
Planungstool SmartSelect
Ausschreibungstexte
Artikelstammdaten und Preise
Produktregistrierung
Minilift
Generelle Produktregistrierung
Über uns
Unternehmensprofil
mastering water
Integriertes Managementsystem
Nachhaltigkeit
Weiterbildung
Verarbeiter
Planer & Architekten
Handel & Institutionen
Betreiber
Bildungspartner
Individuelle Schulungen
Kundenforen
Kundenforum Lenting
Kundenforum Stuttgart
Kundenforum Mainz
Kundenforum Dortmund
Kundenforum Hamburg
Planungshandbuch
Über uns
Produkte
Rückstauschutz
Rückstauschutz - Alles was Fachleute wissen müssen
Rückstauverschlüsse
Pumpfix M
Staufix FKA
Staufix SWA
Controlfix
Staufix
Staufix DN 50 und DN 70
Staufix Siphon DN 50
Rohrklappen
Rückstauschächte
Rückstau-Standardschacht
Rückstau-Modulschacht
Hybrid-Hebeanlagen
Alles was Fachleute wissen müssen
Ecolift M
Ecolift L
Ecolift XL
Pumpentechnik
Alles was Fachleute wissen müssen
Kleinhebeanlagen
Minilift S
Minilift M
Minilift L
Minilift M WC
Minilift L WC
Minilift L WC Duo
Hebeanlagen
Aqualift M
Aqualift L
Aqualift L Pro
Aqualift 100 und 200
Aqualift XL
CleverLoop
CleverVent
Pumpstationen
Aquapump Medium
Aquapump XL
Aquapump XXL
Retrofit
Tauchpumpen
Aquadive KTP 300
Aquadive GTF 500
Aquadive GTF 1000
Ablauftechnik
Ablauftechnik - Alles was Fachleute wissen müssen
Badabläufe und Duschrinnen
Der Ultraflache
Linearis Infinity
Linearis Comfort
Linearis Compact
Wandablauf Scada
Bodenabläufe
Bodenablauf Ecoguss
Bodenablauf Practicus
Bodenablauf Ferrofix
Kellerabläufe
Pumpfix S Underfloor
Universale Plus
Kellerablauf Der Universale
Kellerablauf Drehfix
Leichtflüssigkeitssperre
Kellerabläufe ohne Rückstausicherung
Abläufe im Außenbereich
Parkdeckabläufe Ecoguss
Hofabläufe
Regenabläufe
Flachdachabläufe
Abscheidetechnik
Fettabscheider
Fettabscheider - Alles was Fachleute wissen müssen
EasyClean free
EasyClean free Modular
EasyClean ground
EasyClean ground Oval
Fettabscheider EasyClean ground Multi
BIFENA
Leichtflüssigkeitsabscheider
Koaleszenzabscheider EasyOil ground
Öl-, Benzinabscheider EasyOil ground
Stärkeabscheider
Sinkstoffabscheider
Speisereste-Sammelsystem
Eingabestation EasyCollect
Sammeltank EasyStore
Technikschächte aus Kunststoff
Individuelle Lösungen
Referenzen
OEM-Lösungen
Service
Kataloge & Prospekte
Einbau- und Bedienungsanleitungen
Dienstleistungen
Einbauberatung
Inbetriebnahme & Einweisung
Generalinspektion
Wartung
Wartungsvertrag
Ersatzteile
Servicepartner finden
BIM-Daten und CAD-Zeichnungen
Planungstool SmartSelect
Ausschreibungstexte
Artikelstammdaten und Preise
Produktregistrierung
Minilift
Generelle Produktregistrierung
Über uns
Unternehmensprofil
mastering water
Integriertes Managementsystem
Nachhaltigkeit
Weiterbildung
Verarbeiter
Planer & Architekten
Handel & Institutionen
Betreiber
Bildungspartner
Individuelle Schulungen
Kundenforen
Kundenforum Lenting
Kundenforum Stuttgart
Kundenforum Mainz
Kundenforum Dortmund
Kundenforum Hamburg
Weiterbildung
Produkte
Rückstauschutz
Rückstauschutz - Alles was Fachleute wissen müssen
Rückstauverschlüsse
Pumpfix M
Staufix FKA
Staufix SWA
Controlfix
Staufix
Staufix DN 50 und DN 70
Staufix Siphon DN 50
Rohrklappen
Rückstauschächte
Rückstau-Standardschacht
Rückstau-Modulschacht
Hybrid-Hebeanlagen
Alles was Fachleute wissen müssen
Ecolift M
Ecolift L
Ecolift XL
Pumpentechnik
Alles was Fachleute wissen müssen
Kleinhebeanlagen
Minilift S
Minilift M
Minilift L
Minilift M WC
Minilift L WC
Minilift L WC Duo
Hebeanlagen
Aqualift M
Aqualift L
Aqualift L Pro
Aqualift 100 und 200
Aqualift XL
CleverLoop
CleverVent
Pumpstationen
Aquapump Medium
Aquapump XL
Aquapump XXL
Retrofit
Tauchpumpen
Aquadive KTP 300
Aquadive GTF 500
Aquadive GTF 1000
Ablauftechnik
Ablauftechnik - Alles was Fachleute wissen müssen
Badabläufe und Duschrinnen
Der Ultraflache
Linearis Infinity
Linearis Comfort
Linearis Compact
Wandablauf Scada
Bodenabläufe
Bodenablauf Ecoguss
Bodenablauf Practicus
Bodenablauf Ferrofix
Kellerabläufe
Pumpfix S Underfloor
Universale Plus
Kellerablauf Der Universale
Kellerablauf Drehfix
Leichtflüssigkeitssperre
Kellerabläufe ohne Rückstausicherung
Abläufe im Außenbereich
Parkdeckabläufe Ecoguss
Hofabläufe
Regenabläufe
Flachdachabläufe
Abscheidetechnik
Fettabscheider
Fettabscheider - Alles was Fachleute wissen müssen
EasyClean free
EasyClean free Modular
EasyClean ground
EasyClean ground Oval
Fettabscheider EasyClean ground Multi
BIFENA
Leichtflüssigkeitsabscheider
Koaleszenzabscheider EasyOil ground
Öl-, Benzinabscheider EasyOil ground
Stärkeabscheider
Sinkstoffabscheider
Speisereste-Sammelsystem
Eingabestation EasyCollect
Sammeltank EasyStore
Technikschächte aus Kunststoff
Individuelle Lösungen
Referenzen
OEM-Lösungen
Service
Kataloge & Prospekte
Einbau- und Bedienungsanleitungen
Dienstleistungen
Einbauberatung
Inbetriebnahme & Einweisung
Generalinspektion
Wartung
Wartungsvertrag
Ersatzteile
Servicepartner finden
BIM-Daten und CAD-Zeichnungen
Planungstool SmartSelect
Ausschreibungstexte
Artikelstammdaten und Preise
Produktregistrierung
Minilift
Generelle Produktregistrierung
Über uns
Unternehmensprofil
mastering water
Integriertes Managementsystem
Nachhaltigkeit
Weiterbildung
Verarbeiter
Planer & Architekten
Handel & Institutionen
Betreiber
Bildungspartner
Individuelle Schulungen
Kundenforen
Kundenforum Lenting
Kundenforum Stuttgart
Kundenforum Mainz
Kundenforum Dortmund
Kundenforum Hamburg
Produkte
Rückstauschutz
Rückstauschutz - Alles was Fachleute wissen müssen
Rückstauverschlüsse
Pumpfix M
Staufix FKA
Staufix SWA
Controlfix
Staufix
Staufix DN 50 und DN 70
Staufix Siphon DN 50
Rohrklappen
Rückstauschächte
Rückstau-Standardschacht
Rückstau-Modulschacht
Hybrid-Hebeanlagen
Alles was Fachleute wissen müssen
Ecolift M
Ecolift L
Ecolift XL
Pumpentechnik
Alles was Fachleute wissen müssen
Kleinhebeanlagen
Minilift S
Minilift M
Minilift L
Minilift M WC
Minilift L WC
Minilift L WC Duo
Hebeanlagen
Aqualift M
Aqualift L
Aqualift L Pro
Aqualift 100 und 200
Aqualift XL
CleverLoop
CleverVent
Pumpstationen
Aquapump Medium
Aquapump XL
Aquapump XXL
Retrofit
Tauchpumpen
Aquadive KTP 300
Aquadive GTF 500
Aquadive GTF 1000
Ablauftechnik
Ablauftechnik - Alles was Fachleute wissen müssen
Badabläufe und Duschrinnen
Der Ultraflache
Linearis Infinity
Linearis Comfort
Linearis Compact
Wandablauf Scada
Bodenabläufe
Bodenablauf Ecoguss
Bodenablauf Practicus
Bodenablauf Ferrofix
Kellerabläufe
Pumpfix S Underfloor
Universale Plus
Kellerablauf Der Universale
Kellerablauf Drehfix
Leichtflüssigkeitssperre
Kellerabläufe ohne Rückstausicherung
Abläufe im Außenbereich
Parkdeckabläufe Ecoguss
Hofabläufe
Regenabläufe
Flachdachabläufe
Abscheidetechnik
Fettabscheider
Fettabscheider - Alles was Fachleute wissen müssen
EasyClean free
EasyClean free Modular
EasyClean ground
EasyClean ground Oval
Fettabscheider EasyClean ground Multi
BIFENA
Leichtflüssigkeitsabscheider
Koaleszenzabscheider EasyOil ground
Öl-, Benzinabscheider EasyOil ground
Stärkeabscheider
Sinkstoffabscheider
Speisereste-Sammelsystem
Eingabestation EasyCollect
Sammeltank EasyStore
Technikschächte aus Kunststoff
Individuelle Lösungen
Referenzen
OEM-Lösungen
Service
Kataloge & Prospekte
Einbau- und Bedienungsanleitungen
Dienstleistungen
Einbauberatung
Inbetriebnahme & Einweisung
Generalinspektion
Wartung
Wartungsvertrag
Ersatzteile
Servicepartner finden
BIM-Daten und CAD-Zeichnungen
Planungstool SmartSelect
Ausschreibungstexte
Artikelstammdaten und Preise
Produktregistrierung
Minilift
Generelle Produktregistrierung
Planungshandbuch
Über uns
Unternehmensprofil
mastering water
Integriertes Managementsystem
Nachhaltigkeit
Weiterbildung
Verarbeiter
Planer & Architekten
Handel & Institutionen
Betreiber
Bildungspartner
Individuelle Schulungen
Kundenforen
Kundenforum Lenting
Kundenforum Stuttgart
Kundenforum Mainz
Kundenforum Dortmund
Kundenforum Hamburg
Das KESSEL Planungshandbuch
Hilfreiche Informationen, nützliche Tipps, alle wichtigen Normen und Planungsvorgaben gebündelt an einem Ort: Erleichtern Sie sich die Arbeit mit unserem digitalen Planungshandbuch.
Suche
Suchen
Alle Filter löschen
Lösungen
Know-how
Normen und Vorschriften
Grundlagen
Schutz vor Rückstau
2 Min Lesezeit
Die To-dos der Planung von Rückstausicherungsanlagen
Planung & Regeln
Schutz vor Rückstau
1 Min Lesezeit
Die Pumpentechnik
Grundlagen
Pumpentechnik
2 Min Lesezeit
Was ist Rückstau?
Grundlagen
Schutz vor Rückstau
2 Min Lesezeit
Planerische Grundprinzipien
Grundlagen
Schutz vor Rückstau
2 Min Lesezeit
Gesetzlich bestimmte Verwendbarkeit
Grundlagen
Schutz vor Rückstau
2 Min Lesezeit
Ermittlung der zu schützenden Ablaufstellen
Planung & Regeln
Schutz vor Rückstau
2 Min Lesezeit
Das Einmaleins der Hybrid-Hebeanlagen
Grundlagen
Hybrid Hebeanlagen
3 Min Lesezeit
Platzbedarf und Aufstellraum
Planung & Regeln
Hybrid Hebeanlagen
1 Min Lesezeit
Ermittlung von Abwasserart und Abwassermenge
Planung & Regeln
Schutz vor Rückstau
2 Min Lesezeit
Be- und Entlüftung
Planung & Regeln
Hybrid Hebeanlagen
1 Min Lesezeit
Druckleitung an Hybrid-Hebeanlagen
Planung & Regeln
Hybrid Hebeanlagen
1 Min Lesezeit
Planung und Einbau
Planung & Regeln
Hybrid Hebeanlagen
2 Min Lesezeit
Niederschlagswasser
Planung & Regeln
Hybrid Hebeanlagen
2 Min Lesezeit
Ermittlung des Einbauortes
Planung & Regeln
Schutz vor Rückstau
1 Min Lesezeit
Bestimmung der Sicherungsstrategie
Planung & Regeln
Schutz vor Rückstau
2 Min Lesezeit
Hybrid-Entwässerung nach dem Ecolift-Prinzip
Lösungen & Funktionen
Hybrid Hebeanlagen
4 Min Lesezeit
Was darf über eine Hebeanlage abgeleitet werden?
Grundlagen
Pumpentechnik
1 Min Lesezeit
Wichtige Begriffe
Grundlagen
Pumpentechnik
1 Min Lesezeit
Aufbau einer Hebeanlage
Grundlagen
Pumpentechnik
1 Min Lesezeit
Sonden und Sensoren
Grundlagen
Pumpentechnik
1 Min Lesezeit
Betriebsarten von Abwasserpumpen
Grundlagen
Pumpentechnik
2 Min Lesezeit
Explosionsschutz
Grundlagen
Pumpentechnik
1 Min Lesezeit
Bestimmung der Entwässerungsart
Planung & Regeln
Schutz vor Rückstau
1 Min Lesezeit
Laufradtypen für Pumpentechnik
Grundlagen
Pumpentechnik
1 Min Lesezeit
Aufstellraum
Planung & Regeln
Pumpentechnik
1 Min Lesezeit
Be- und Entlüftung von Hebeanlagen
Planung & Regeln
Pumpentechnik
2 Min Lesezeit
Druckleitung in der Pumpentechnik
Planung & Regeln
Pumpentechnik
2 Min Lesezeit
Niederschlagswasser sicher ableiten
Planung & Regeln
Pumpentechnik
2 Min Lesezeit
Pumpenförderstrom
Planung & Regeln
Pumpentechnik
2 Min Lesezeit
Notwendigkeit einer Reservefördereinrichtung
Planung & Regeln
Pumpentechnik
1 Min Lesezeit
Schalt- und Warngerät
Planung & Regeln
Pumpentechnik
1 Min Lesezeit
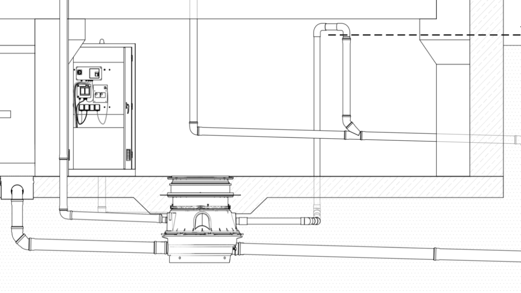
Hebeanlage in der Bodenplatte
Lösungen & Funktionen
Pumpentechnik
4 Min Lesezeit
Hebeanlage im Erdreich
Lösungen & Funktionen
Pumpentechnik
5 Min Lesezeit
Frei aufgestellte Hebeanlagen
Lösungen & Funktionen
Pumpentechnik
3 Min Lesezeit
Inbetriebnahme von Pumpentechnik
Betrieb & Wartung
Pumpentechnik
1 Min Lesezeit
Inspektion und Wartung von Pumpentechnik
Betrieb & Wartung
Pumpentechnik
2 Min Lesezeit
Bestimmung der Nutzungsart
Planung & Regeln
Schutz vor Rückstau
2 Min Lesezeit
Rückstauschutz bei Regenwasser
Planung & Regeln
Schutz vor Rückstau
2 Min Lesezeit
Sammelabsicherung bei Regenwasser kleiner Flächen
Planung & Regeln
Schutz vor Rückstau
1 Min Lesezeit
Rückstauschutz bei fetthaltigem Abwasser
Planung & Regeln
Schutz vor Rückstau
2 Min Lesezeit
Rückstauschutz bei mineralölhaltigem Abwasser
Planung & Regeln
Schutz vor Rückstau
3 Min Lesezeit
Planung von Bodenabläufen
Planung & Regeln
Ablauftechnik
1 Min Lesezeit
Wichtige Normen der Ablauftechnik
Planung & Regeln
Ablauftechnik
1 Min Lesezeit
Bemessung der Ablaufleistung
Planung & Regeln
Ablauftechnik
3 Min Lesezeit
Wassereinwirkungsklasse
Planung & Regeln
Ablauftechnik
1 Min Lesezeit
Abdichtung von Abläufen im Verbund
Planung & Regeln
Ablauftechnik
1 Min Lesezeit
Rückstauschutz bei Regenwassernutzung und Kleinkläranlagen
Planung & Regeln
Schutz vor Rückstau
1 Min Lesezeit
Abdichtung mit Dichtungsbahnen
Planung & Regeln
Ablauftechnik
2 Min Lesezeit
Produktauswahl
Lösungen & Funktionen
Schutz vor Rückstau
2 Min Lesezeit
Abdichtung mit Sonderformen
Planung & Regeln
Ablauftechnik
1 Min Lesezeit
Funktionsprinzip
Grundlagen
Ablauftechnik
unter 1 Min Lesezeit
Alternative Geruchsverschlüsse
Grundlagen
Ablauftechnik
1 Min Lesezeit
Rückstauschutz bei Schmutzwasser außerhalb vom Gebäude
Lösungen & Funktionen
Schutz vor Rückstau
1 Min Lesezeit
Rückstauschutz bei Schmutzwasser innerhalb vom Gebäude
Lösungen & Funktionen
Schutz vor Rückstau
1 Min Lesezeit
Lösungsvorschläge
Lösungen & Funktionen
Schutz vor Rückstau
unter 1 Min Lesezeit
Werkstoffwahl bei Abläufen
Grundlagen
Ablauftechnik
2 Min Lesezeit
Rohranschluss an Abläufe
Grundlagen
Ablauftechnik
1 Min Lesezeit
Baukastensystem
Lösungen & Funktionen
Schutz vor Rückstau
1 Min Lesezeit
Selbstdiagnose System – SDS
Lösungen & Funktionen
Schutz vor Rückstau
2 Min Lesezeit
Belastungsklassen für Entwässerungstechnik
Grundlagen
Ablauftechnik
1 Min Lesezeit
Einbau
Einbau & Anschluss
Schutz vor Rückstau
1 Min Lesezeit
Beruhigungsstrecke
Einbau & Anschluss
Schutz vor Rückstau
1 Min Lesezeit
Einbau in die Bodenplatte
Einbau & Anschluss
Schutz vor Rückstau
1 Min Lesezeit
Schallschutz bei Bodenabläufen
Grundlagen
Ablauftechnik
3 Min Lesezeit
Rostarten und Rutschhemmklassen
Grundlagen
Ablauftechnik
3 Min Lesezeit
Abdichtung WU-Einbau (weiße Wanne)
Planung & Regeln
Ablauftechnik
1 Min Lesezeit
Sicherer Betrieb
Betrieb & Wartung
Schutz vor Rückstau
1 Min Lesezeit
Inspektion und Wartung
Betrieb & Wartung
Schutz vor Rückstau
2 Min Lesezeit
Brandschutz für Ablauftechnik
Planung & Regeln
Ablauftechnik
4 Min Lesezeit
Das Einmaleins der Stärkeabscheider
Grundlagen
Stärkeabscheider
1 Min Lesezeit
Das Einmaleins der Sinkstoffabscheider
Grundlagen
Sinkstoffabscheider
1 Min Lesezeit
Ablauftechnik für die Badsanierung
Lösungen & Funktionen
Ablauftechnik
2 Min Lesezeit
Rückstausichere Abläufe
Lösungen & Funktionen
Ablauftechnik
1 Min Lesezeit
Bodenabläufe und Rinnen aus Edelstahl
Lösungen & Funktionen
Ablauftechnik
4 Min Lesezeit
Türrinnen
Lösungen & Funktionen
Ablauftechnik
1 Min Lesezeit
Wartung von Ablauftechnik
Betrieb & Wartung
Ablauftechnik
2 Min Lesezeit
Wann wird ein Leichtflüssigkeitsabscheider benötigt?
Grundlagen
Leichtflüssigkeitsabscheider
1 Min Lesezeit
Wie funktioniert ein Fettabscheider?
Grundlagen
Fettabscheider
1 Min Lesezeit
Was darf nicht in den Fettabscheider gelangen?
Grundlagen
Fettabscheider
1 Min Lesezeit
Bemessung eines Fettabscheiders nach DIN 1825-2
Planung & Regeln
Fettabscheider
2 Min Lesezeit
Tipps für den Aufstell- & Einbauort
Planung & Regeln
Fettabscheider
2 Min Lesezeit
Anschluss von Fettabscheidern - Planung
Planung & Regeln
Fettabscheider
2 Min Lesezeit
Entsorgungsleitung
Planung & Regeln
Fettabscheider
1 Min Lesezeit
Be- und Entlüftung von Fettabscheidern
Planung & Regeln
Fettabscheider
2 Min Lesezeit
Fettabscheider & Rückstauschutz
Planung & Regeln
Fettabscheider
2 Min Lesezeit
Fetthaltiges Abwasser heben
Planung & Regeln
Fettabscheider
1 Min Lesezeit
Fettabscheider zur freien Aufstellung
Lösungen & Funktionen
Fettabscheider
3 Min Lesezeit
Fettabscheider für den Einbau ins Erdreich
Lösungen & Funktionen
Fettabscheider
3 Min Lesezeit
Einbringung & Aufstellung
Lösungen & Funktionen
Fettabscheider
1 Min Lesezeit
Anschluss von Fettabscheidern
Einbau & Anschluss
Fettabscheider
2 Min Lesezeit
Entsorgung des Fettabscheiderinhalts
Betrieb & Wartung
Fettabscheider
1 Min Lesezeit
Generalinspektion mit Dichtheitsprüfung
Betrieb & Wartung
Fettabscheider
2 Min Lesezeit
Wartung von Fettabscheidern
Betrieb & Wartung
Fettabscheider
1 Min Lesezeit
Fettabscheider kostengünstiger betreiben
Betrieb & Wartung
Fettabscheider
2 Min Lesezeit
Funktionsweise eines Leichtflüssigkeitsabscheiders
Grundlagen
Leichtflüssigkeitsabscheider
4 Min Lesezeit
Rückstauschutz
Grundlagen
Leichtflüssigkeitsabscheider
1 Min Lesezeit
Planungstipps: Leichtflüssigkeitsabscheider
Planung & Regeln
Leichtflüssigkeitsabscheider
4 Min Lesezeit
Erdeinbau
Planung & Regeln
Leichtflüssigkeitsabscheider
2 Min Lesezeit
Anschluss
Planung & Regeln
Leichtflüssigkeitsabscheider
1 Min Lesezeit
Lösungen
Lösungen & Funktionen
Leichtflüssigkeitsabscheider
1 Min Lesezeit
Entsorgung
Betrieb & Wartung
Leichtflüssigkeitsabscheider
1 Min Lesezeit
Generalinspektion
Betrieb & Wartung
Leichtflüssigkeitsabscheider
1 Min Lesezeit
Eigenkontrolle, Wartung und Betrieb
Betrieb & Wartung
Leichtflüssigkeitsabscheider
1 Min Lesezeit
Ermittlung der Rückstauebene
Planung & Regeln
Schutz vor Rückstau
2 Min Lesezeit
Wann wird ein Fettabscheider benötigt?
Grundlagen
Fettabscheider
1 Min Lesezeit